Rénovation Maison Individuelle

Logement individuel – Centre-ville

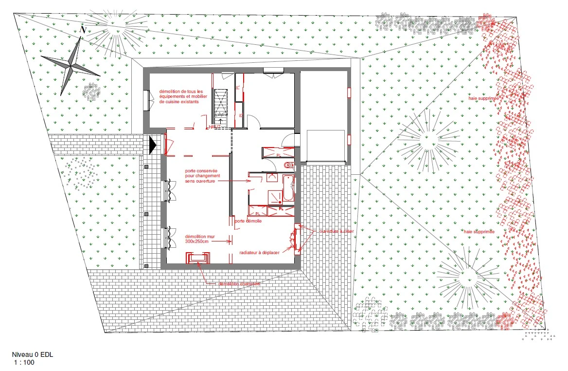
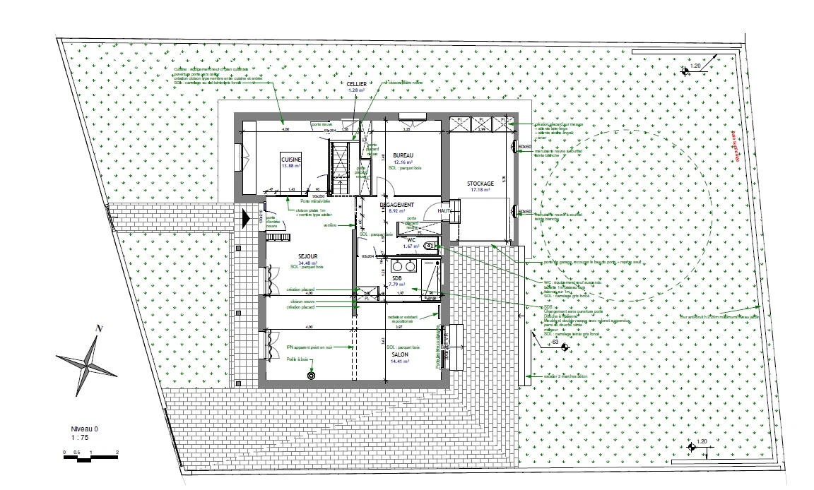
Le projet porte sur une maison individuelle présentant de belles surfaces, dont la perception est entachée par une circulation peu optimisée et un cloisonnement omniprésent. La réhabilitation de cette maison commence dès l’entrée via la mise en place d’une verrière intérieure côté cuisine, et l’ouverture franche sur le séjour de l’autre côté. Les ouvertures sur l’extérieur ont également été repensées pour répondre à une amélioration de la luminosité naturelle.

  • LocalisationToulouse (31)
  • Maître d'ouvragePrivé
  • Surface165 m²
  • StatutEn cours
  • Date2024
  • CatégorieLogement, Centre-ville, Réhabilitation/Rénovation